Verkocht onder voorbehoud

Verkocht onder voorbehoud: Bouwmeesterstraat 2A, 6821 GT Arnhem

€ 235.000,- k.k.
Type object Appartement, benedenwoning
Perceeloppervlakte 37 m²
Woonoppervlakte 65 m²
Aanvaarding In overleg
Status Verkocht onder voorbehoud

Notitie

Algemeen

In het populaire Sonsbeekkwartier, op loopafstand van het bruisende centrum van Arnhem en de prachtige stadsparken, ligt deze charmante en verrassende benedenwoning met souterrain. De woning is gelegen aan een rustig achterpad en maakte voorheen onderdeel uit van de benedenwoning aan de Graaf Lodewijkstraat 16.

Bij binnenkomst betreedt u de woning aan de keukenzijde. Hier vindt u een nette,... Meer informatie
  • Kenmerken

    Alle kenmerken
    Type object Appartement, benedenwoning
    Bouwjaar 1976
    Status Verkocht onder voorbehoud
    Aangeboden sinds Woensdag 25 maart 2026
  • Locatie

Kenmerken

Overdracht
Vraagprijs € 235.000,- k.k.
Status Verkocht onder voorbehoud
Aanvaarding In overleg
Aangeboden sinds Woensdag 25 maart 2026
Laatste wijziging Woensdag 6 mei 2026
Bouw
Type object Appartement, benedenwoning
Woonlaag 1e woonlaag
Soort bouw Bestaande bouw
Bouwjaar 1976
Dakbedekking Bitumen
Type dak Platdak
Isolatievormen Dubbel glas
Oppervlaktes en inhoud
Perceeloppervlakte 37 m²
Woonoppervlakte 65 m²
Inhoud 219 m³
Indeling
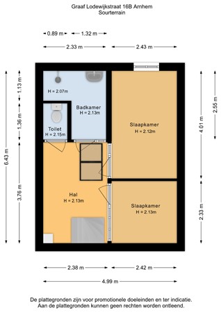
Aantal bouwlagen 2
Aantal kamers 3 (waarvan 2 slaapkamers)
Locatie
Ligging Aan rustige weg, Beschutte ligging
CV ketel
CV ketel HR
Warmtebron Gas
Combiketel Ja
Eigendom Eigendom
Uitrusting
Warm water CV-ketel
Verwarmingssysteem Centrale verwarming
Badkamervoorzieningen Douche, Wastafel
Heeft ventilatie Ja
Kadastrale gegevens
Kadastrale aanduiding Arnhem N 6990
Perceeloppervlakte 37 m²
Omvang Deel perceel
Eigendomsituatie Eigen grond
Indexnummer A3

Beschrijving

In het populaire Sonsbeekkwartier, op loopafstand van het bruisende centrum van Arnhem en de prachtige stadsparken, ligt deze charmante en verrassende benedenwoning met souterrain. De woning is gelegen aan een rustig achterpad en maakte voorheen onderdeel uit van de benedenwoning aan de Graaf Lodewijkstraat 16.

Bij binnenkomst betreedt u de woning aan de keukenzijde. Hier vindt u een nette, eenvoudige keuken met direct aansluitend een lichte en ruime woonkamer. Dankzij de prettige lichtinval voelt de ruimte aangenaam en open aan. Een bijzonder detail is de beloopbare glazen vloer in de keuken, die zorgt voor een speels architectonisch element én extra lichtinval naar het souterrain.

De woning beschikt tevens over een aparte toiletruimte in de benedenverdieping.

Via een trap bereikt u het souterrain. Er is hier een aparte toiletruimte en hier bevindt zich ook de badkamer met een douche en een wastafel, even als twee ruimtes, waarvan 1 een slaapkamer met buitenraam. Eén van de kamers beschikt dus over een raam met ventilatiemogelijkheid naar buiten en is daarmee uitstekend geschikt als slaapkamer. De tweede ruimte betreft een binnenkamer, ideaal te gebruiken als logeerkamer, kleedruimte of bergruimte, waar je eventueel nog een plafondraam in zou kunnen maken voor meer daglicht vanuit de woonkamer.

De woonruimte aan de achterzijde is netjes en functioneel, en biedt mogelijkheden. Zo kan deze relatief eenvoudig worden betrokken bij de woning aan de voorzijde, waardoor extra woonoppervlakte gecreëerd kan worden. Ook is deze ruimte uitermate geschikt als werkruimte of studio aan huis.

Bijzonderheden:
• Gelegen op een gewilde locatie nabij centrum en stadsparken;
• Rustig gelegen aan een achterpad;
• Gratis parkeren voor de deur;
• Praktisch ingedeeld met souterrain;
• Mogelijkheid tot uitbreiding/ samenvoeging met voorgelegen woning;
• Geen achtertuin;
• Vraagprijs betreft een bieden vanaf prijs

Brochure(s) en overige bijlagen

Sluiten

Recent bekeken