Nieuw in verkoop

Te koop: Wakerdijk 21, 6846 RT Arnhem

€ 475.000,- k.k.
Type object Eengezinswoning, woonhuis, tussenwoning
Perceeloppervlakte 118 m²
Woonoppervlakte 132 m²
Aanvaarding In overleg
Status Nieuw in verkoop

Notitie

Algemeen

Deze mooie duurzaam gebouwde woning ligt in de leuke wijk "De Schuytgraaf".
Alleen de straat is er al eentje om jezelf thuis te voelen. Ook al woon je dichtbij de stad, de Wakerdijk straalt rust uit.
De huizen zijn omringd met groen en om de hoek vind je een gezellige stadstuin. De woning is bijna energieneutraal.

Super energiezuinig'

De woning is BENG, wat staat voor Bijna Energieneutr... Meer informatie
  • Kenmerken

    Alle kenmerken
    Type object Eengezinswoning, woonhuis, tussenwoning
    Bouwjaar 2019
    Status Nieuw in verkoop
    Aangeboden sinds Dinsdag 28 oktober 2025
  • Locatie

Kenmerken

Overdracht
Vraagprijs € 475.000,- k.k.
Status Nieuw in verkoop
Aanvaarding In overleg
Aangeboden sinds Dinsdag 28 oktober 2025
Laatste wijziging Woensdag 5 november 2025
Bouw
Type object Eengezinswoning, woonhuis, tussenwoning
Soort bouw Bestaande bouw
Bouwjaar 2019
Dakbedekking Dakpannen
Type dak Zadeldak
Isolatievormen Dakisolatie, Dubbel glas, Muurisolatie, Vloerisolatie, Volledig geïsoleerd
Oppervlaktes en inhoud
Perceeloppervlakte 118 m²
Woonoppervlakte 132 m²
Woonkameroppervlakte 24 m²
Inhoud 455 m³
Oppervlakte overige inpandige ruimten 7 m²
Oppervlakte externe bergruimte 8 m²
Indeling
Aantal bouwlagen 3
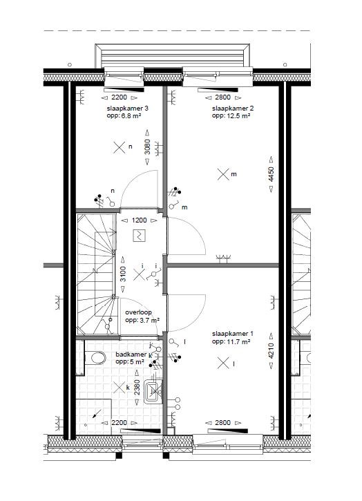
Aantal kamers 7 (waarvan 4 slaapkamers)
Locatie
Ligging Aan rustige weg, In woonwijk
Tuin
Type Achtertuin
Hoofdtuin Ja
Oriëntering Zuiden
Heeft een achterom Ja
Staat Normaal
Tuin 2 - Type Achtertuin
Tuin 2 - Staat Normaal
Energieverbruik
Energielabel A
Energie-index 0,57
Uitrusting
Verwarmingssysteem Stadsverwarming
Badkamervoorzieningen Douche, Ligbad, Toilet, Wastafel, Wastafelmeubel
Heeft kabel-tv Ja
Glasvezelaansluiting aanwezig Ja
Tuin aanwezig Ja
Heeft schuur/berging Ja
Heeft zonnecollectoren Ja
Heeft ventilatie Ja
Kadastrale gegevens
Kadastrale aanduiding Arnhem AF 4507
Perceeloppervlakte 118 m²
Omvang Geheel perceel
Eigendomsituatie Eigen grond

Beschrijving

Deze mooie duurzaam gebouwde woning ligt in de leuke wijk "De Schuytgraaf".
Alleen de straat is er al eentje om jezelf thuis te voelen. Ook al woon je dichtbij de stad, de Wakerdijk straalt rust uit.
De huizen zijn omringd met groen en om de hoek vind je een gezellige stadstuin. De woning is bijna energieneutraal.

Super energiezuinig'

De woning is BENG, wat staat voor Bijna Energieneutraal. Dit is de toekomst.
BENG-woningen zijn ontworpen om zo min mogelijk impact op het milieu te hebben. Ultra duurzaam dus.

Indeling:

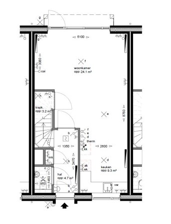
Entree, hal met toilet en meterkast met de unit voor de stadsverwarming.
De aan de achterzijde (ca. 2 mtr) uitgebouwde woonkamer heeft een grote glaspui met tuindeur waardoor de kamer licht en nog ruimer is.
In de open keuken heb je de beschikking over voldoende kast- en werkruimte en daarnaast ben je voorzien van een kookplaat, combi-oven, vaatwasser, koelkast en vriezer.

1e Verdieping:

Vanaf de overloop heb je toegang tot drie slaapkamers en de badkamer. De badkamer is voorzien van een ligbad, wastafel en 2e toilet.

2e Verdieping:

Via een vaste trap kom je op de 2e verdieping met 2 slaapkamers; een kamer met de warmte terugwin installatie, een opstelling voor de wasmachine en droger alsmede een bergkamer.

Bijzonderheden:
- Alle voordelen van nieuwbouw.
- Lichte uitbouw.
- Moderne keuken en badkamer.
- 2 Slaapkamers op zolder.
- Energielabel A.
- 6 Zonnepanelen.
- Voorzien van een warmte terugwin installatie.
- Bijna energieneutraal (BENG).
- Kindvriendelijke buurt.
Sluiten

Recent bekeken