Nieuw in verkoop

Te koop: Wormerveerstraat 36, 6843 AJ Arnhem

€ 375.000,- k.k.
Type object Eengezinswoning, woonhuis, geschakelde woning
Perceeloppervlakte 151 m²
Woonoppervlakte 114 m²
Aanvaarding In overleg
Status Nieuw in verkoop

Notitie

Algemeen

Prachtig gemoderniseerde tussenwoning in de groene wijk Elderveld met vrije tuin en luxe veranda. De voortuin is geheel bestraat. De woning is nog niet zo lang geleden fraai verbouwd en beschikt over een nieuwe keuken met inbouwapparatuur, een nieuwe badkamer en 4 slaapkamers. Daarnaast is er aangebouwde veranda en een onderhoudsvriendelijke achtertuin gelegen op het zuidwesten.

De Wormervee... Meer informatie
  • Kenmerken

    Alle kenmerken
    Type object Eengezinswoning, woonhuis, geschakelde woning
    Bouwjaar 1982
    Status Nieuw in verkoop
    Aangeboden sinds Dinsdag 23 september 2025
  • Locatie

Kenmerken

Overdracht
Vraagprijs € 375.000,- k.k.
Status Nieuw in verkoop
Aanvaarding In overleg
Aangeboden sinds Dinsdag 23 september 2025
Bouw
Type object Eengezinswoning, woonhuis, geschakelde woning
Soort bouw Bestaande bouw
Bouwjaar 1982
Dakbedekking Dakpannen
Type dak Zadeldak
Isolatievormen Dakisolatie, Dubbel glas
Oppervlaktes en inhoud
Perceeloppervlakte 151 m²
Woonoppervlakte 114 m²
Inhoud 388 m³
Oppervlakte overige inpandige ruimten 1 m²
Oppervlakte externe bergruimte 8 m²
Oppervlakte gebouwgebonden buitenruimte 13 m²
Indeling
Aantal bouwlagen 3
Aantal kamers 5 (waarvan 4 slaapkamers)
Locatie
Ligging Aan rustige weg, In woonwijk
Tuin
Type Achtertuin
Hoofdtuin Ja
Oriëntering Zuid-west
Heeft een achterom Ja
Staat Goed onderhouden
Tuin 2 - Type Achtertuin
Tuin 2 - Staat Goed onderhouden
Tuin 3 - Type Voortuin
Tuin 3 - Staat Goed onderhouden
CV ketel
CV ketel Remeha HR
Bouwjaar 2021
Eigendom Eigendom
Uitrusting
Warm water CV-ketel
Verwarmingssysteem Centrale verwarming
Badkamervoorzieningen Inloopdouche, Toilet, Wastafel, Wastafelmeubel
Heeft kabel-tv Ja
Tuin aanwezig Ja
Heeft schuur/berging Ja
Heeft een dakraam Ja
Heeft ventilatie Ja
Kadastrale gegevens
Kadastrale aanduiding Arnhem AC 8417
Perceeloppervlakte 151 m²
Omvang Geheel perceel
Eigendomsituatie Eigen grond

Beschrijving

Prachtig gemoderniseerde tussenwoning in de groene wijk Elderveld met vrije tuin en luxe veranda. De voortuin is geheel bestraat. De woning is nog niet zo lang geleden fraai verbouwd en beschikt over een nieuwe keuken met inbouwapparatuur, een nieuwe badkamer en 4 slaapkamers. Daarnaast is er aangebouwde veranda en een onderhoudsvriendelijke achtertuin gelegen op het zuidwesten.

De Wormerveerstraat ligt in Elderveld-Noord, een wijk met veel jonge gezinnen. De groene omgeving zal daarin zeker een rol spelen. Er zijn verschillende parken in de directe omgeving en er is volop speelgelegenheid in de wijk. Alle voorzieningen zoals winkels (winkelcentrum Elderhof), scholen, kinderopvang, sportclubs en medische zorg zijn op loop- of fietsafstand aanwezig. Arnhem-Centrum is snel bereikbaar met de fiets, de auto of het openbaar vervoer. Het NS-station Arnhem Zuid ligt dichtbij, er is een bushalte op loopafstand en vanuit de wijk ben je zo op de snelwegen in de regio.

Bouwjaar: 1982. Woonoppervlakte 114 m². Inhoud 388 m³.

De Indeling luidt als volgt:

Begane grond:
Bij binnenkomst in de halt treft u een keurig moderne toiletruimte met fonteintje welke gemoderniseerd is. Er is een moderne meterkast en een ruime lichte netjes afgewerkte woonkamer met een open trap naar de eerste verdieping. De halfopen eetkeuken zorgt voor een gezellige sfeer in het huis. Deze inbouwkeuken beschikt over een combimagnetron, een afzuigkap, een vaatwasser en een inductiekookplaat. De keuken grenst aan een open luxe serre /veranda, die het gemak biedt voor een "droge" zit en barbecueruimte.

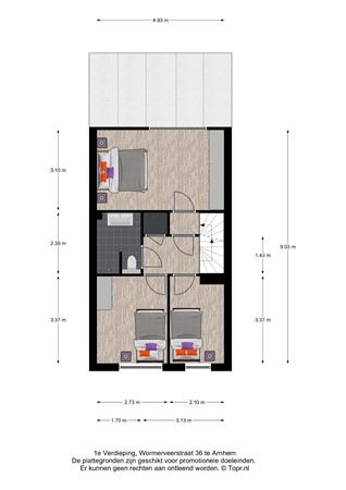
1e verdieping: 3 ruime lichte slaapkamers, waarvan 2 aan de voorzijde en 1 grote ouderslaapkamer aan de achterzijde.. De luxe badkamer is recent eveneensgeheel gemoderniseerd en is voorzien van een wastafelmeubel, een zwevend toilet en een praktische inloopdouche.

Tweede verdieping:
Deze bereikt u via een vaste trap. Hier vind u een 4e slaap/werkkamer met een groot dakraam. Op deze verdieping zit ook de aansluiting voor de wasmachine. De cv opstelling is hier ook geplaatst. Daarnaast is er zolderberging.

Tuin:
Fijne onderhoudsvriendelijke tuin gelegen op het zuidwesten met aangebouwde veranda, vrijstaande stenen berging en achterom.

Bijzonderheden:
- Aangebouwde veranda.
- Nieuwe CV installatie (2021).
- Nieuwe keuken (2022).
- 4 slaapkamers.
- Nieuwe badkamer (2022).
- Geheel voorzien van kunststof kozijnen met dubbele beglazing.
- Onderhoudsvriendelijke achtertuin gelegen op het zuidwesten.
- Gelegen in een kindvriendelijke wijk.
- Ideale gezinswoning.
- LET OP, dit is een bieden vanaf prijs!

Plattegronden

Sluiten

Recent bekeken