Verkocht

Verkocht: Vossenberglaan 21, 6891 CJ Rozendaal

€ 595.000,- k.k.
Type object Eengezinswoning, woonhuis, geschakelde woning
Perceeloppervlakte 338 m²
Woonoppervlakte 143 m²
Aanvaarding In overleg
Status Verkocht

Notitie

Algemeen

Ruimte, licht en een groene ligging, dé gezinswoning met 5 slaapkamers, garage en diepe tuin.

Rustig wonen in geliefd Rozendaal, met de natuur om de hoek en alle voorzieningen dichtbij: basisschool en kleinschalige school voor HAVO, VWO en Gymnasium in het dorp. Sportclubs in de directe omgeving. (voetbal, tennis, hockey en golf) en goede OV-verbindingen via station Velp. Wandelaars, fietse... Meer informatie
  • Kenmerken

    Alle kenmerken
    Type object Eengezinswoning, woonhuis, geschakelde woning
    Bouwjaar 1973
    Status Verkocht
    Aangeboden sinds Dinsdag 30 september 2025
  • Locatie

Kenmerken

Overdracht
Prijs € 595.000,- k.k.
Status Verkocht
Aanvaarding In overleg
Aangeboden sinds Dinsdag 30 september 2025
Laatste wijziging Dinsdag 28 oktober 2025
Bouw
Type object Eengezinswoning, woonhuis, geschakelde woning
Soort bouw Bestaande bouw
Bouwjaar 1973
Type dak Zadeldak
Oppervlaktes en inhoud
Perceeloppervlakte 338 m²
Woonoppervlakte 143 m²
Inhoud 631 m³
Oppervlakte overige inpandige ruimten 20 m²
Oppervlakte gebouwgebonden buitenruimte 21 m²
Indeling
Aantal bouwlagen 3
Aantal kamers 6 (waarvan 5 slaapkamers)
Locatie
Ligging Aan rustige weg, In bosrijke omgeving, In woonwijk, Vrij uitzicht
Tuin
Type Achtertuin
Hoofdtuin Ja
Oriëntering Noord-oost
Heeft een achterom Ja
Staat Goed onderhouden
Tuin 2 - Type Achtertuin
Tuin 2 - Staat Goed onderhouden
Tuin 3 - Type Voortuin
Tuin 3 - Staat Goed onderhouden
Energieverbruik
Energielabel D
CV ketel
CV ketel Remeha
Warmtebron Gas
Bouwjaar 2000
Combiketel Ja
Eigendom Eigendom
Uitrusting
Aantal parkeerplaatsen 1
Warm water CV-ketel
Verwarmingssysteem Centrale verwarming
Badkamervoorzieningen Dubbele wastafel, Ligbad, Toilet
Tuin aanwezig Ja
Heeft schuur/berging Ja
Kadastrale gegevens
Kadastrale aanduiding Rozendaal C 1632
Perceeloppervlakte 338 m²
Omvang Geheel perceel
Eigendomsituatie Eigen grond

Beschrijving

Ruimte, licht en een groene ligging, dé gezinswoning met 5 slaapkamers, garage en diepe tuin.

Rustig wonen in geliefd Rozendaal, met de natuur om de hoek en alle voorzieningen dichtbij: basisschool en kleinschalige school voor HAVO, VWO en Gymnasium in het dorp. Sportclubs in de directe omgeving. (voetbal, tennis, hockey en golf) en goede OV-verbindingen via station Velp. Wandelaars, fietsers en buitensporters zitten hier perfect.

Zelden verrast een woning zó in ruimte als deze twee-onder-een-kap aan de Vossenberglaan 21. Met maar liefst vijf slaapkamers, een zeer ruime garage en een brede, groene achtertuin is dit de ideale gezinsbasis. Je woont hier heerlijk rustig en kindvriendelijk, vlak bij natuurgebied Nationaal Park Veluwezoom met bossen, heidevelden en zandverstuivingen. Scholen (o.a. de dorpsschool), sportfaciliteiten zoals de tennis- en hockeyverenigingen bij Beekhuizen en het station Velp liggen op korte afstand.

De woning is in oorspronkelijke staat en biedt volop mogelijkheden voor modernisering.

Pluspunten op een rij:

- 2-onder-1-kap met garage en brede, zonnige tuin (perceel 338 m²).
- Vijf slaapkamers en veel bergruimte.
- Sfeervolle woonkamer met houten vloer, erker en open haard.
- Semi open keuken met inbouwapparatuur en doorloop naar de serre met fraai uitzicht.
- Badkamer met ligbad, dubbele wastafel en tweede toilet.
- Kindvriendelijke ligging; achter de tuin ligt een speeltuintje (poort mogelijk).
- Gedeeltelijk dubbel glas; bouwjaar 1973.
- Voorzijde en deels zijkant in 2025 geschilderd.
- c.v.-combiketel aanwezig.

De indeling luidt als volgt:

Begane grond:

Entree, ruime hal met toilet, meterkast en kast met c.v.-combiketel en wasmachine-aansluiting.
Royale woonkamer met erker, open haard en een mooie houten vloer. Via de eetkamer doorloop naar de semi open keuken met apparatuur. Toegang tot de serre met vrij uitzicht op de tuin.

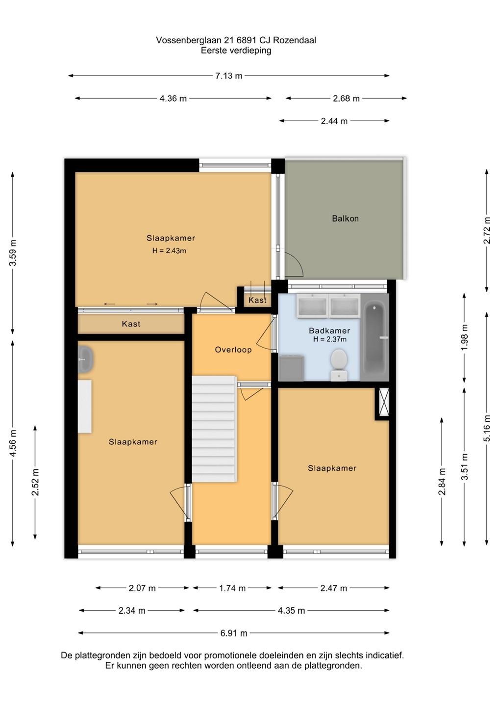
Eerste verdieping
Overloop. Slaapkamer met loggia en kastenwand. Badkamer met ligbad, 2 wastafels, 2e toilet en extra wasmachine-aansluiting. Via een tussenhal toegang tot twee slaapkamers, waarvan één met wastafel.

Tweede verdieping
Overloop met bergruimte achter de knieschotten. Twee slaapkamers en een aparte berging met wastafel.

Buiten
De ruime, groene achtertuin biedt volop privacy en speelmogelijkheden. Aan de achterzijde is er de mogelijkheid voor een poort richting het schuin achtergelegen speeltuintje. Aan de voorzijde is er een eigen oprit naar de zeer ruime garage.

Bijzonderheden
Ruime tuin; poort naar speeltuintje mogelijk
Woonoppervlakte ca.143m2. Gebouw gebonden buiten ruimte ca. 21m2. Overige inpandige ruimte ca. 20m2. Inhoud ca. 631m3.
Gedeeltelijk dubbel glas
Houten vloer in woonkamer
Zeer ruime garage
Bouwjaar 1973
Voorzijde en deels zijkant in 2025 geschilderd
c.v.-combiketel
Nabij diverse uitvalswegen o.a. A12 en A50
niet-zelfbewoningsclausule
Sluiten

Recent bekeken